Skip to main content

portfolio

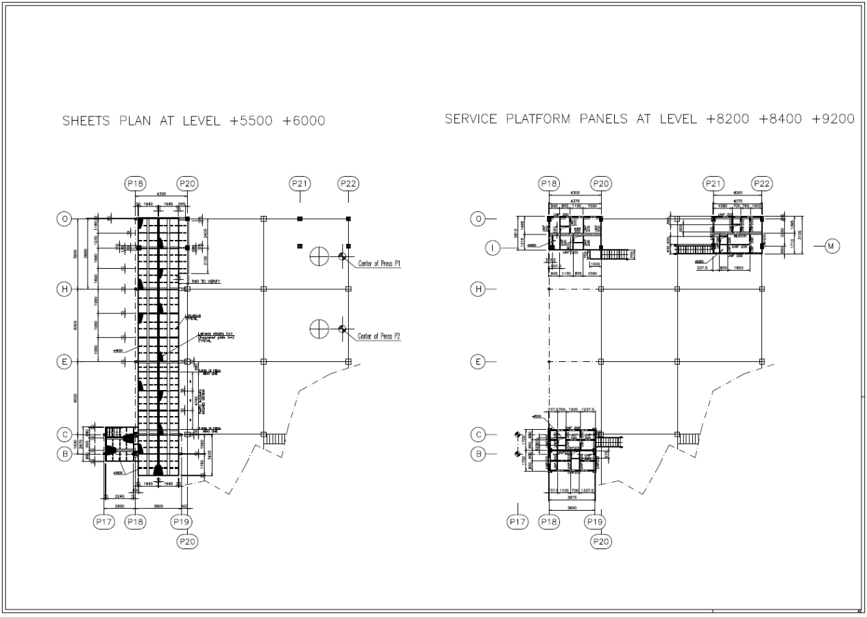
Layout 3d

Un layout impiantistico è un disegno bidimensionale e/o una rappresentazione grafica  tridimensionale che mostra la disposizione e la distribuzione degli impianti
(come ad esempio macchinari, tubazioni, condotte, elettricità, ecc.) all’interno di un ambiente, come una struttura o un edificio.  
Il layout è quindi la formalizzazione dello studio della disposizione dei reparti e dei servizi in un’area prestabilita.
La realizzazione di tale layout è il risultato di uno studio che mette a confronto diverse configurazioni.
Durante la realizzazione di un nuovo impianto industriale, di norma, il layout finale dell’impianto viene analizzato con il committente e progettato insieme al processo produttivo, alle nuove linee e alle nuove macchine.
Questo tipo di layout è importante per garantire che gli impianti siano installati in modo efficiente ed efficace al fine di migliorare e ottimizzare il sistema produttivo
richiesto dal cliente, il tutto tenendo in considerazione le normative vigenti.
Sfruttando il sistema tridimensionale possiamo raggiungere elevati livelli di precisione e valutazione degli spazi e degli ingombri atti a migliorare l’efficienza delle
macchine e le future manutenzioni che saranno eseguite dagli operatori impiantistici.
Al fine di preservare la riservatezza dei nostri clienti e dei loro progetti non ci è possibile inserire disegni di layout da noi realizzati, ma solo qualche stralcio tridimensionale.

Layout 3D_1-4
Layout 3D_3-4
Layout 3D_1-4
Layout 3D_CIANO
Layout 3D_ROSSO_1-2

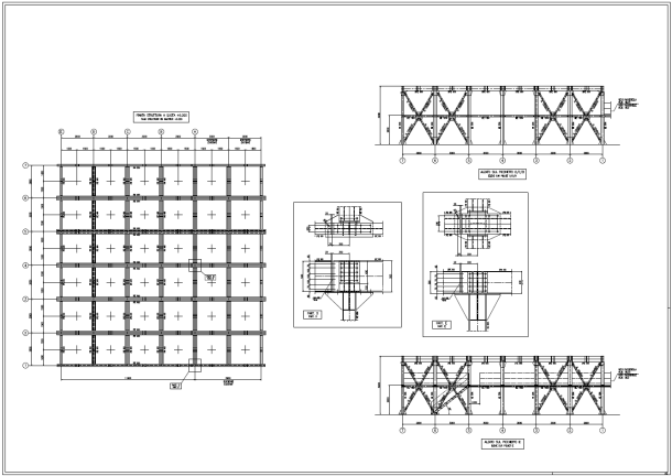
MODELLI 3D CARPENTERIA

Un modello 3D è una rappresentazione digitale tridimensionale di un oggetto, creato utilizzando software specializzati. Questo tipo di modello fornisce una visione
più accurata e dettagliata rispetto ai modelli bidimensionali, poiché cattura la profondità e la forma degli oggetti come apparirebbero nella realtà.
I modelli 3D sono utilizzati in una vasta gamma di settori e applicazioni.
Modellando in tridimensionale strutture come quelle che vedete sotto, cerchiamo di ridurre al minimo possibili problematiche di ingombri, sovrapposizioni o bullonatura,
che potrebbero crearsi nelle varie fasi di costruzione e montaggio.

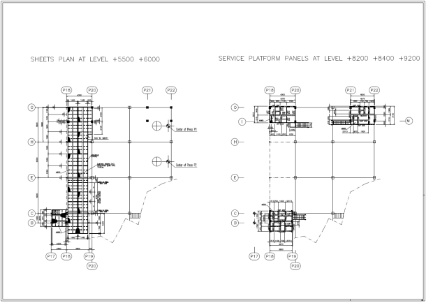
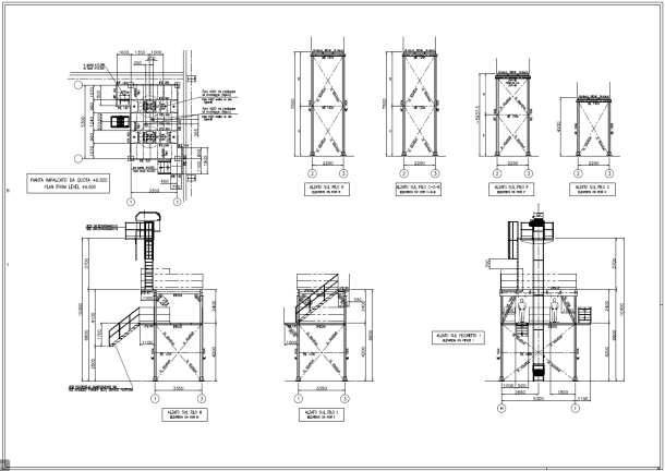
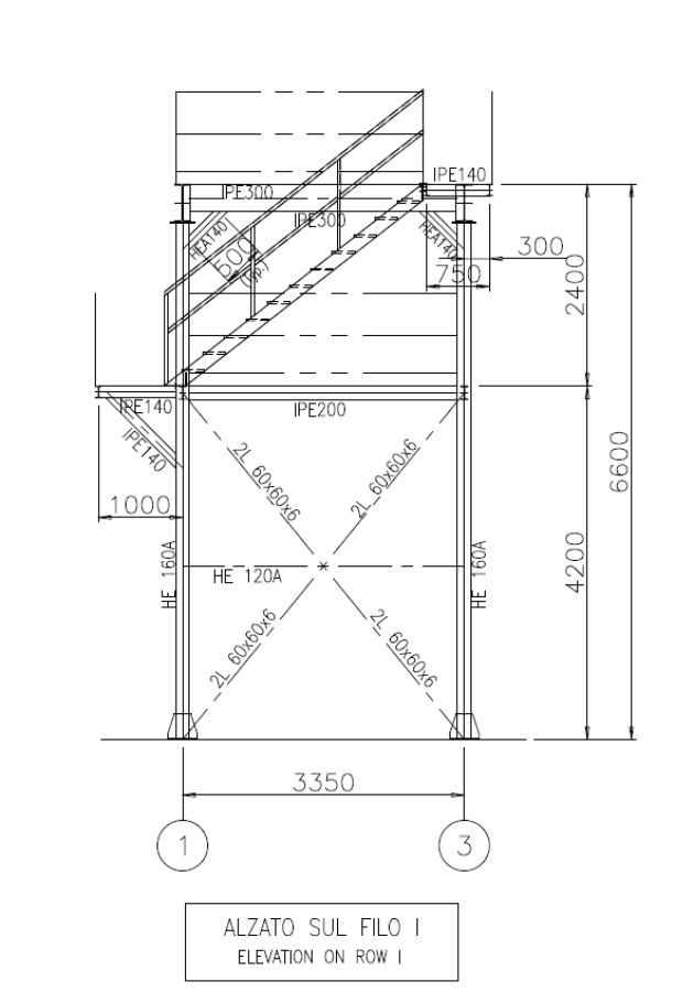
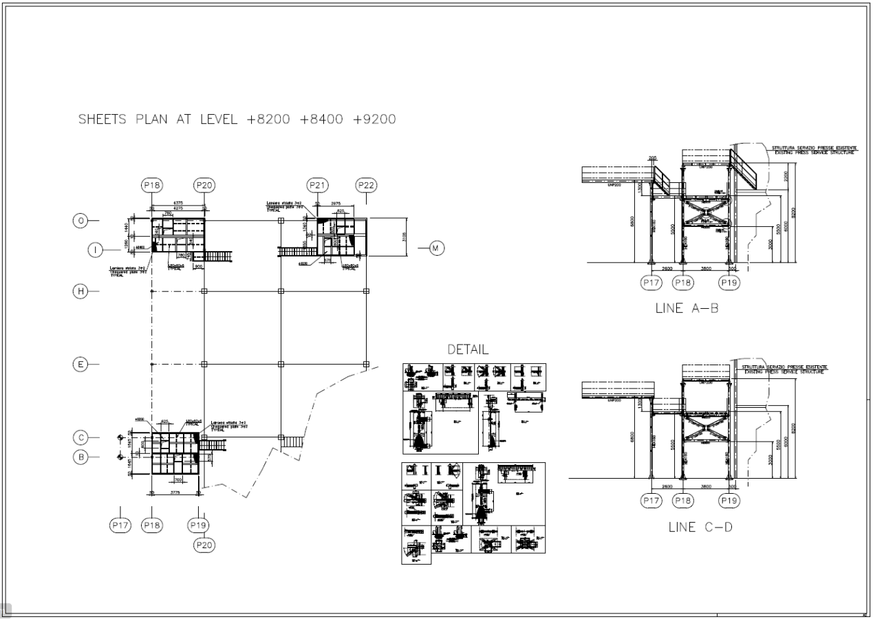
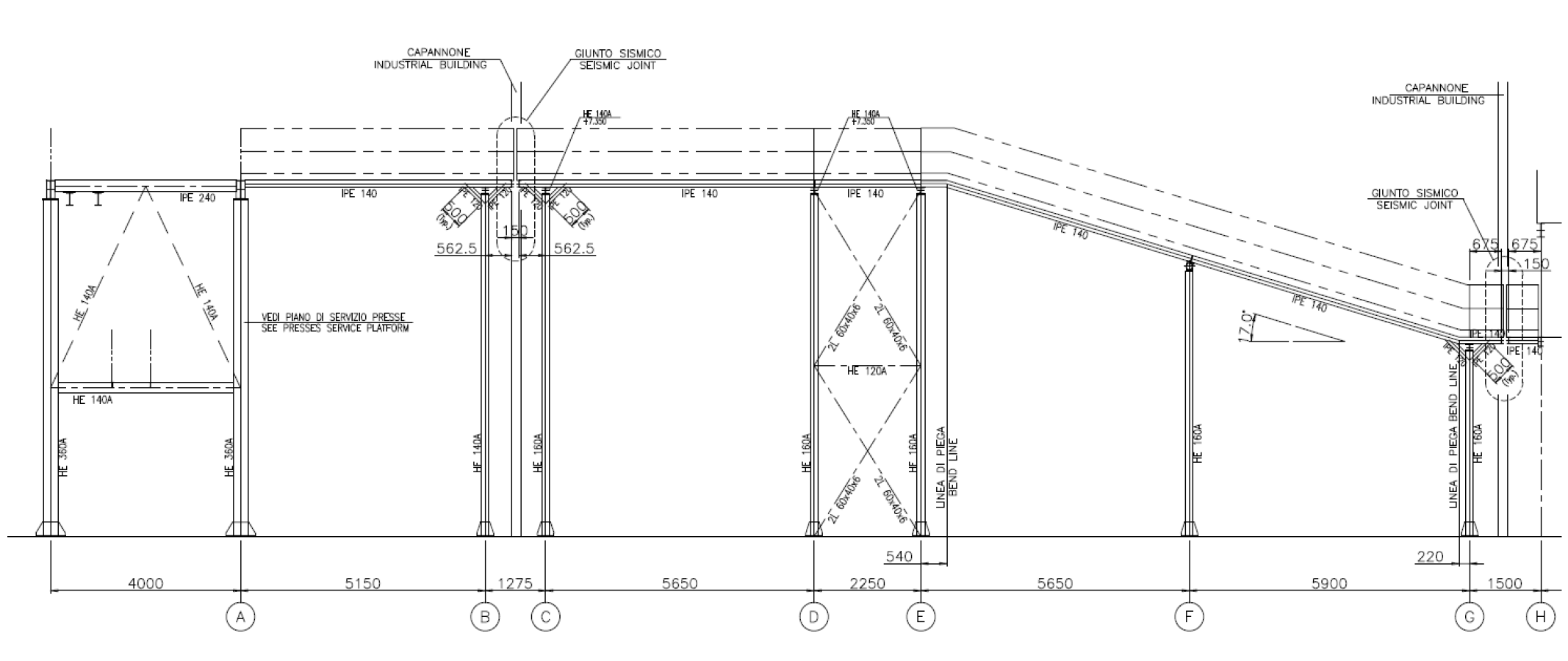
DISEGNI COSTRUTTIVI

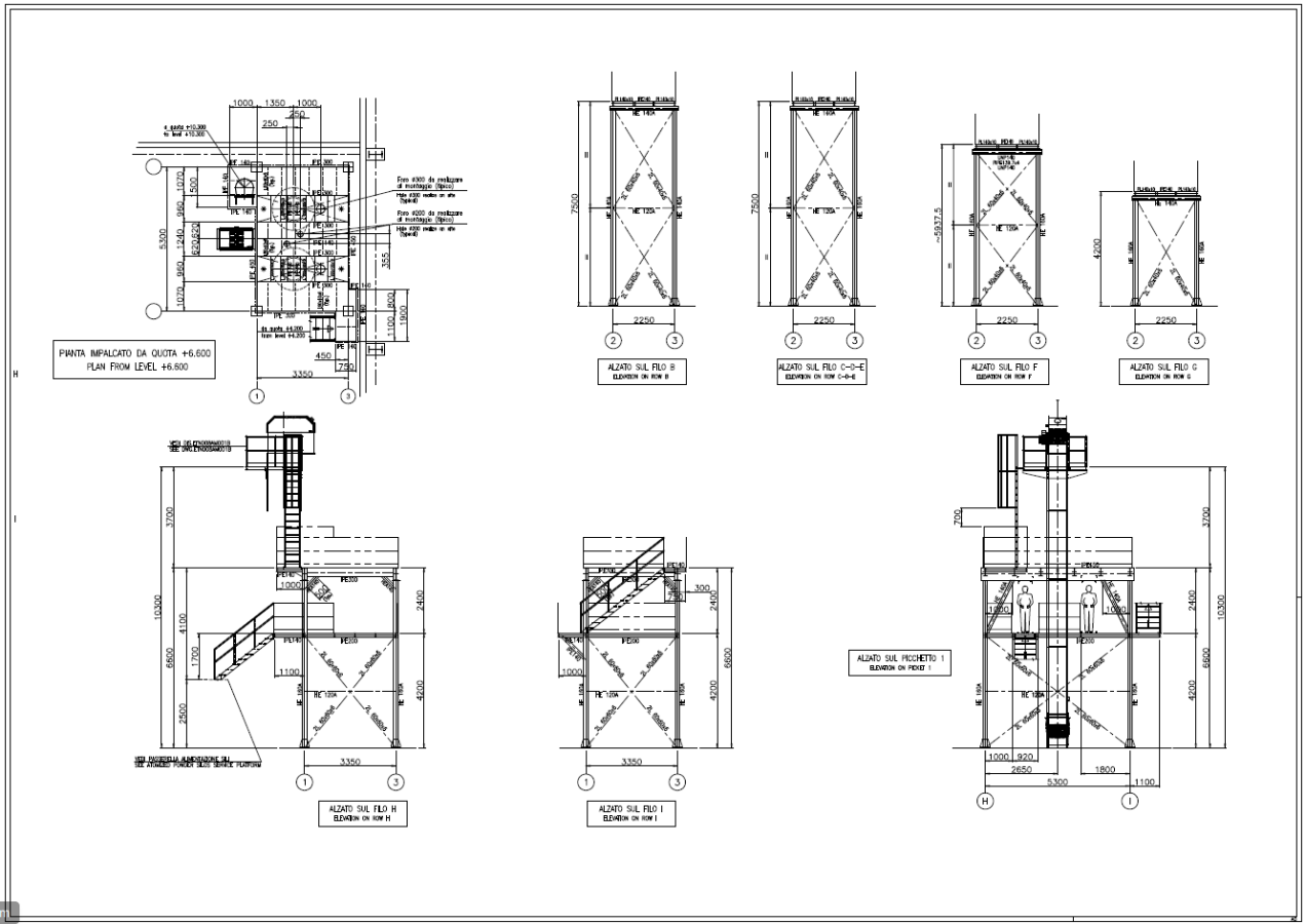
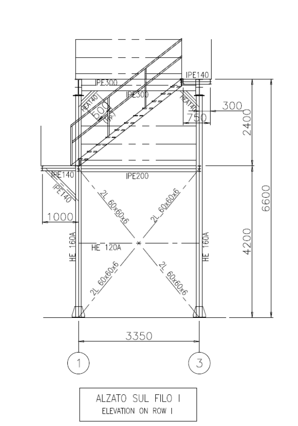
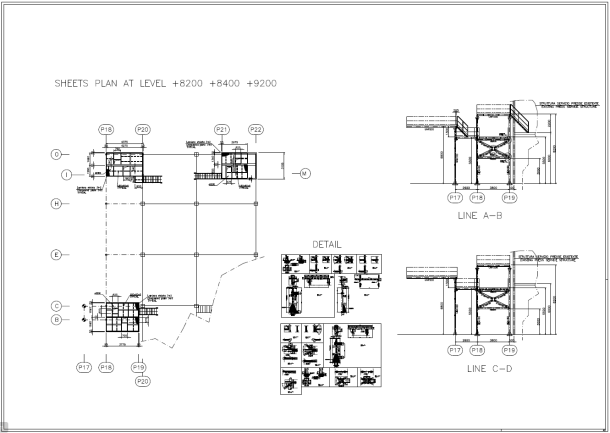
I disegni costruttivi sono rappresentazioni grafiche dettagliate comprensive di dimensioni, forme, materiali e metodologie costruttive, sezioni, viste e dettagli vari che
hanno lo scopo di permettere la costruzione fisica di ogni singolo assemblato della struttura (es. colonne, travi, pannelli…), per  trasformare il progetto di un’opera in
realtà e garantire che la costruzione venga eseguita secondo le specifiche desiderate.



Struttura Ingresso C.M. 1-9

struttura ingresso 2 tecmecsrl sassuolo disegni costruttivi

Struttura Ingresso C.M. 2-9

struttura ingresso 3 tecmecsrl sassuolo disegni costruttivi

Struttura Ingresso C.M. 3-9

struttura ingresso 4 tecmecsrl sassuolo disegni costruttivi

Struttura Ingresso C.M. 4-9

struttura ingresso 5 tecmecsrl sassuolo disegni costruttivi

Struttura Ingresso C.M. 5-9

struttura ingresso 6 tecmecsrl sassuolo disegni costruttivi

Struttura Ingresso C.M. 6-9

struttura ingresso 7 tecmecsrl sassuolo disegni costruttivi

Struttura Ingresso C.M. 7-9

struttura ingresso 8 tecmecsrl sassuolo disegni costruttivi

Struttura Ingresso C.M. 8-9

Struttura Ingresso C.M. 9-9


FILE STEP (.stp)

Un file STEP, acronimo di Standard for the Exchange of Product model data, è un formato di file utilizzato nell’ambito della progettazione e ingegneria assistita dal computer (CAD/CAM) per lo scambio di dati tridimensionali tra diversi software e sistemi. È uno standard internazionale, definito dalla ISO (Organizzazione internazionale per la normazione) come ISO 10303, che fornisce una struttura comune per la rappresentazione e lo scambio di informazioni relative a prodotti e processi industriali.

Il formato STEP è stato introdotto per superare i limiti dei formati di file proprietari, che spesso comportavano problemi di compatibilità tra i vari software CAD/CAM utilizzati dai progettisti e dagli ingegneri. Grazie alla sua natura neutrale e aperta, il formato STEP consente lo scambio affidabile di dati tra differenti sistemi, garantendo la coerenza e l’integrità delle informazioni geometriche e attributive dei modelli tridimensionali.

Un file STEP contiene una rappresentazione digitale dettagliata di un oggetto tridimensionale, inclusi i suoi elementi geometrici (come punti, linee, curve e superfici) e le relative proprietà (come materiali, colori, texture e attributi fisici). Questa rappresentazione viene espressa attraverso un linguaggio neutrale, basato su una struttura gerarchica di entità e relazioni, che consente di descrivere in modo completo e accurato la geometria e le caratteristiche del prodotto.

Ad esempio nel settore metalmeccanico, sempre più aziende specializzate nella lavorazione e nelle trasformazione di profili in ferro e lamiere, utilizzano macchinari che usano questo formato per lavorare.

Uno dei vantaggi principali del formato STEP è la sua capacità di conservare le informazioni semantiche dei modelli tridimensionali, ovvero il significato e il contesto delle entità geometriche e attributive. Ciò significa che, oltre alla pura geometria, un file STEP può includere informazioni riguardanti la funzione, l’assemblaggio, la produzione e altre proprietà del prodotto, rendendolo estremamente utile per scopi come la progettazione, l’analisi, la simulazione, la produzione e la gestione del ciclo di vita del prodotto (PLM).

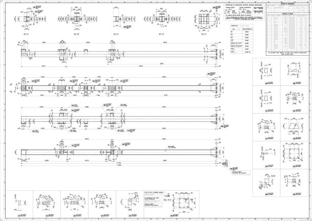
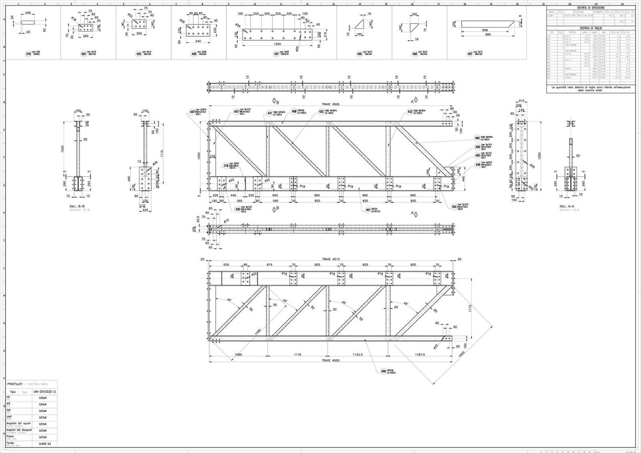
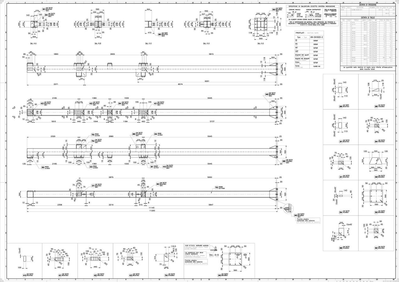
Normalini e distinte di taglio

I normalini, anche chiamati modulini, sono disegni di officina dei singoli profili che compongono la struttura. Questi contengono tutte le informazioni per la
realizzazione dello stesso, tipologia di materiale (profilo, piastra…), dimensioni, qualità del materiale, eventuali forature, smussi, raccordi o altro.

Perche sono importanti?
– Nel caso di un committente che deve far costruire una struttura, fornire questo tipo di disegno al carpentiere permette di velocizzare eventuali ordini e quindi la
consegna della stessa
.
– Nel caso di un officina metalmeccanica invece fa si che l’ufficio tecnico possa fare una valutazione precisa delle lavorazioni che saranno da fare, cosi da valutare tempestivamente il materiale da ordinare oppure quali lavorazioni è in grado di fare internamente e quali no, suddividerle e poter sentire eventuali fornitori esterni
a cui appoggiarsi qualora non riuscisse a svolgere qualche lavorazione.


strutture

Strutture presse

Strutture sili


Scale

SCALA INGRESSO UFFICI

SCALA DISEGNATA DA NOI

2D

scala 2D

Compila il modulo per maggiori informazioni